Áreas Versáteis para Negócios de Sucesso

ENCONTRE O
SEU ESPAÇO

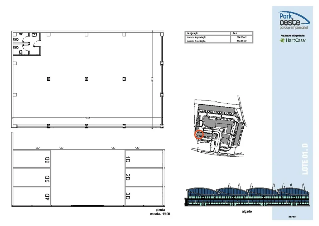
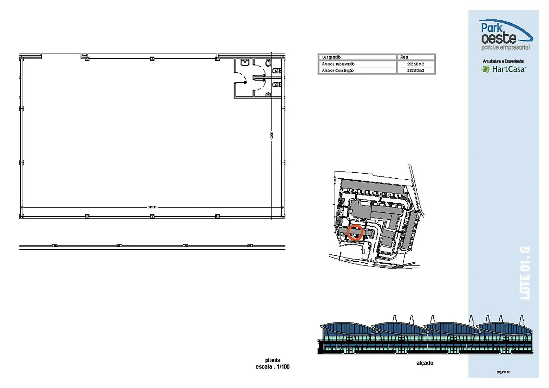
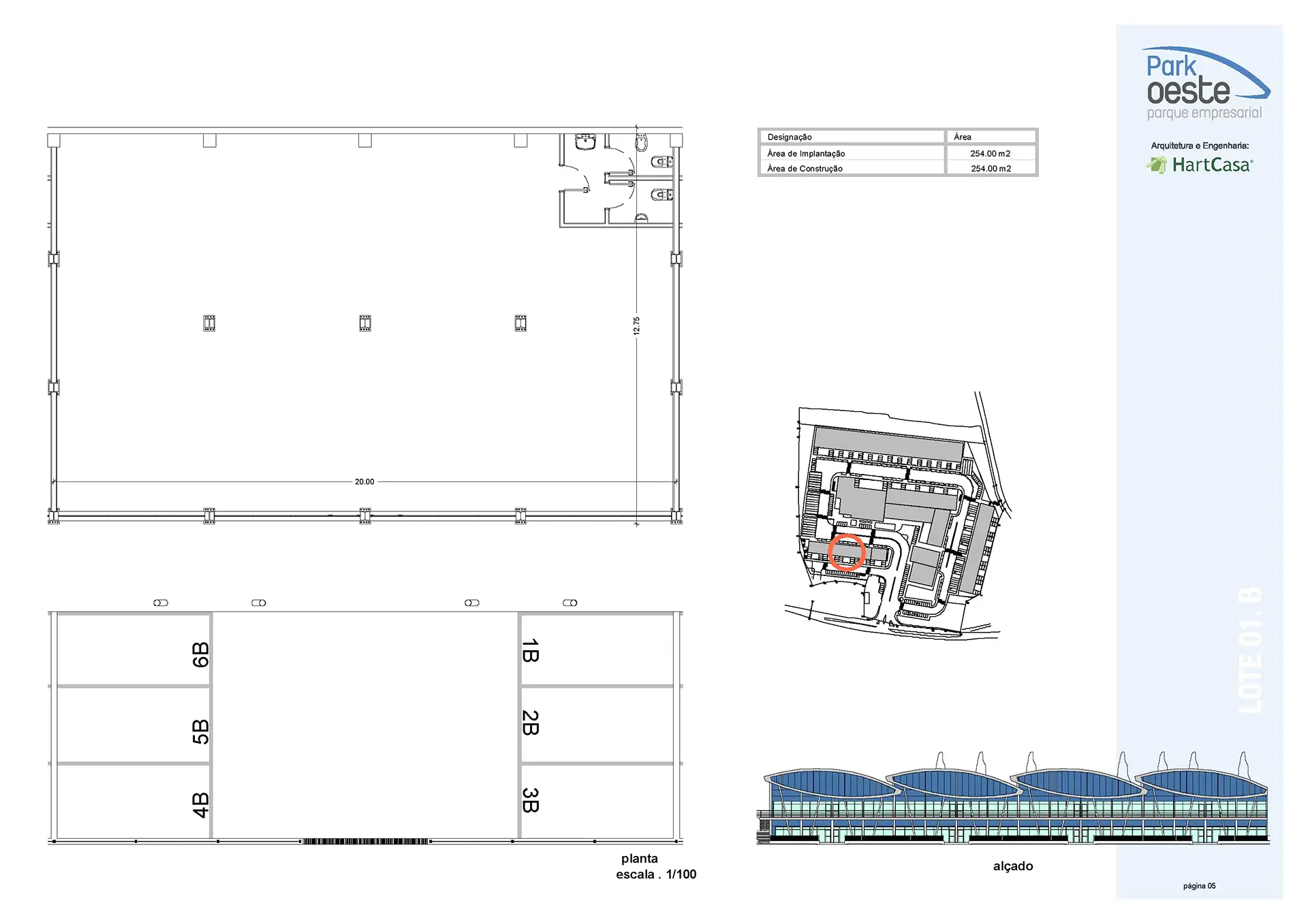
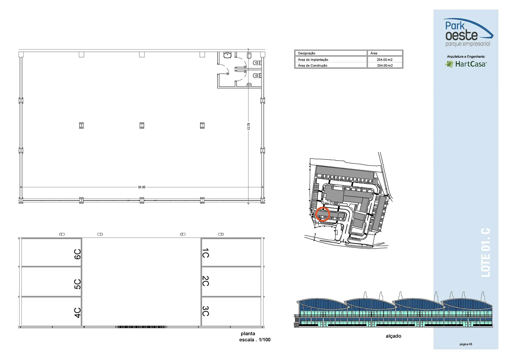
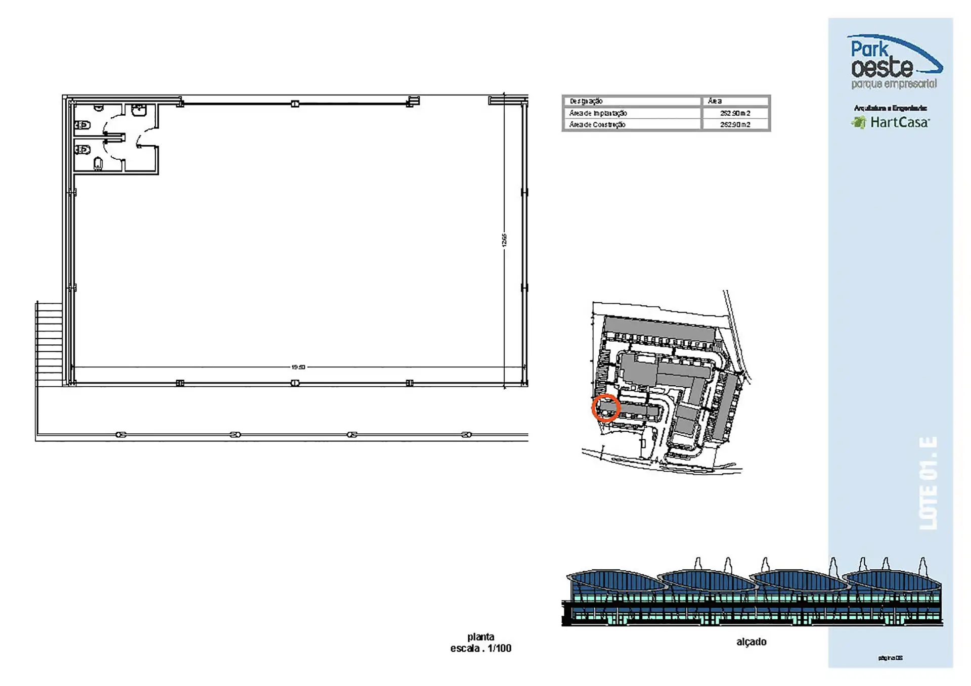
LOTE 1

Lojas

Edifício industrial de dois pisos, composto por 8 frações autónomas. São 4 frações no piso térreo e 4 no primeiro andar, todas projetadas para acolher atividades de comércio ou serviços. Com um total de 2025m², este espaço oferece a versatilidade e funcionalidade ideais para o sucesso do seu negócio.

FRAÇÃO ÁREA PISO CONDIÇÃO
A
250 m²
TÉRREO
B
250 m²
TÉRREO
C
250 m²
TÉRREO
D
250 m²
TÉRREO
E
250 m²
1º ANDAR
F
250 m²
1º ANDAR
G
250 m²
1º ANDAR
H
250 m²
1º ANDAR

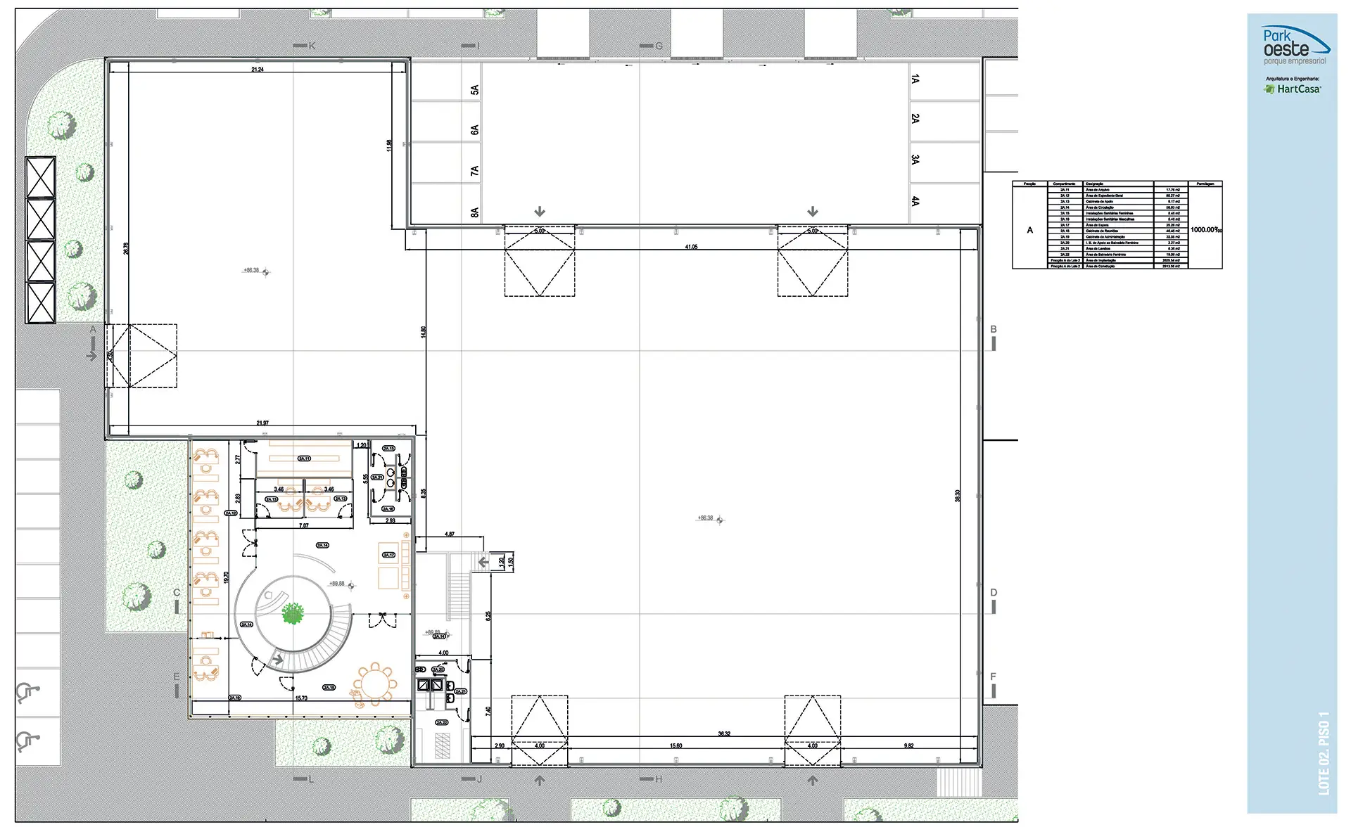
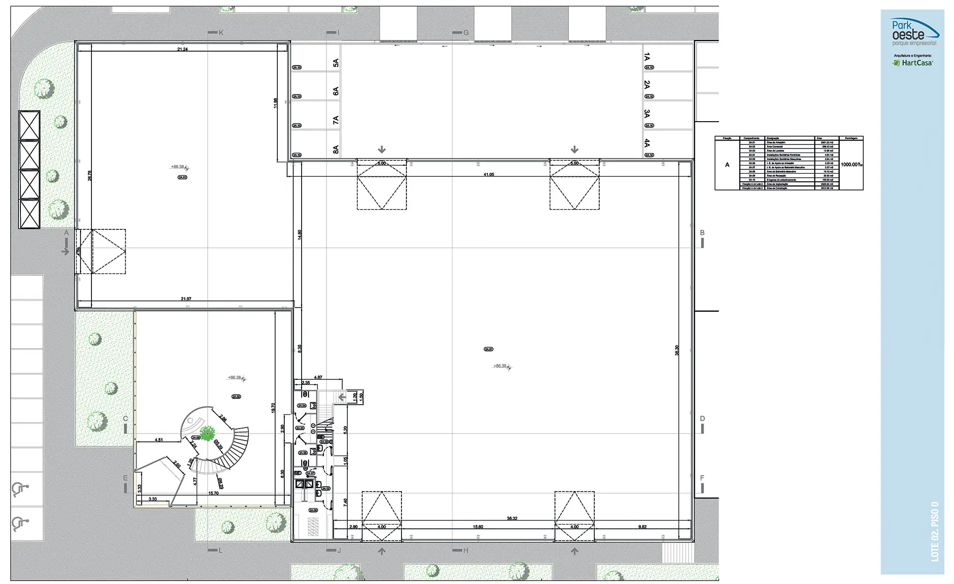
LOTE 2

Armazém com Showroom

Edifício industrial composto por uma nave destinada a armazém, e um núcleo de dois pisos constituído por rés-do-chão destinado a showroom e 1º andar destinado a escritórios, com uma área de 2814 m2.

FRAÇÃO ÁREA PISO CONDIÇÃO
2800 m²
DOIS PISOS

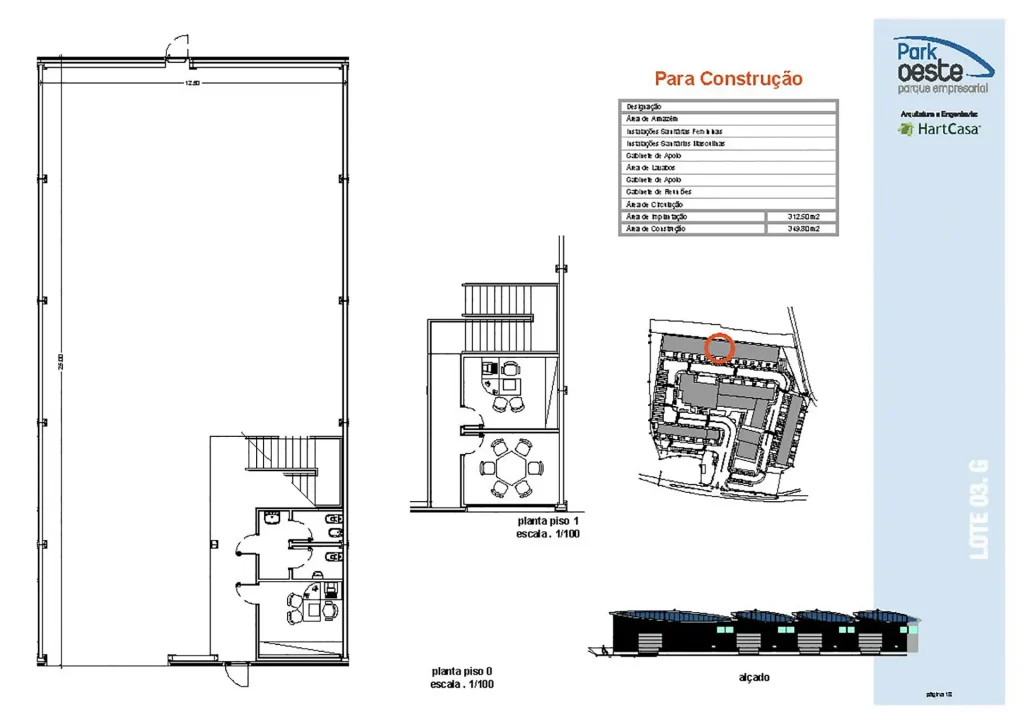
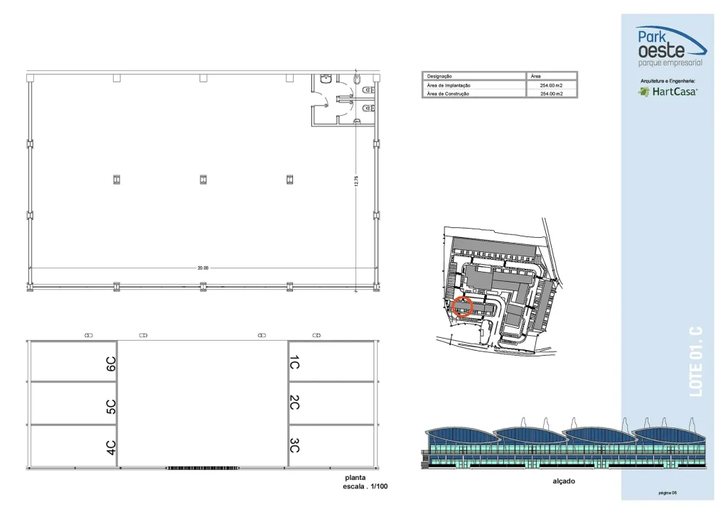
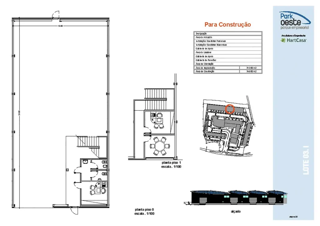
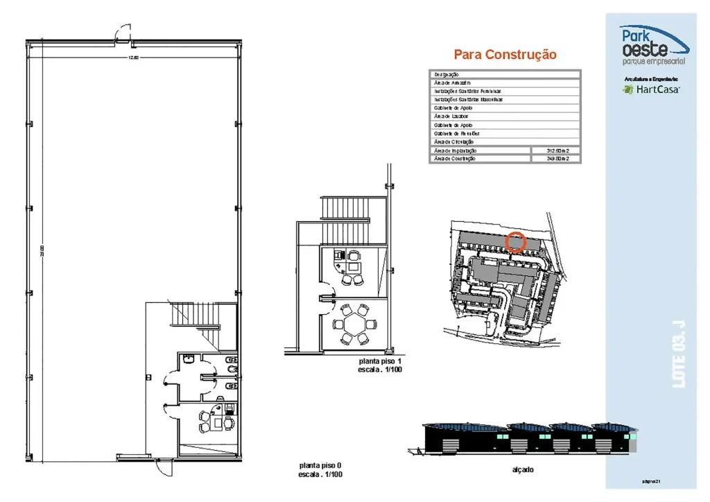
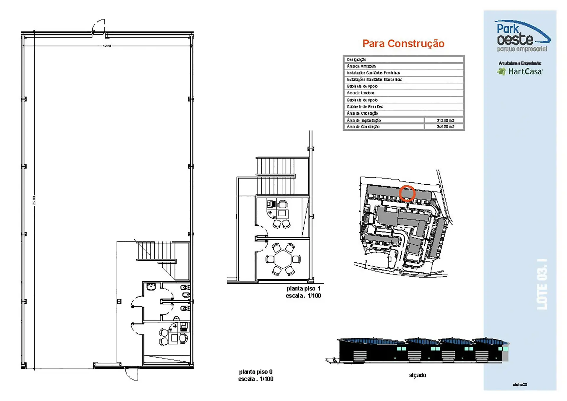
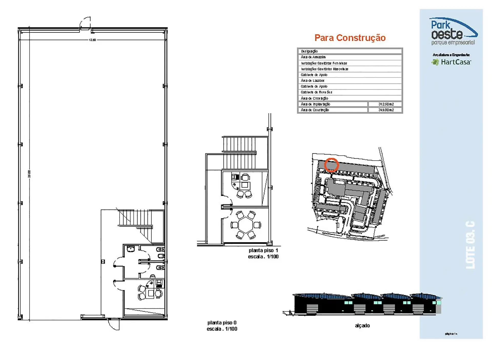
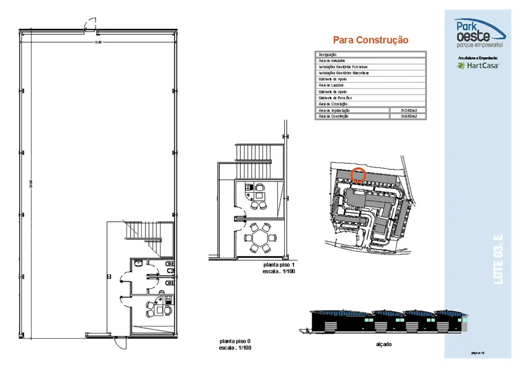
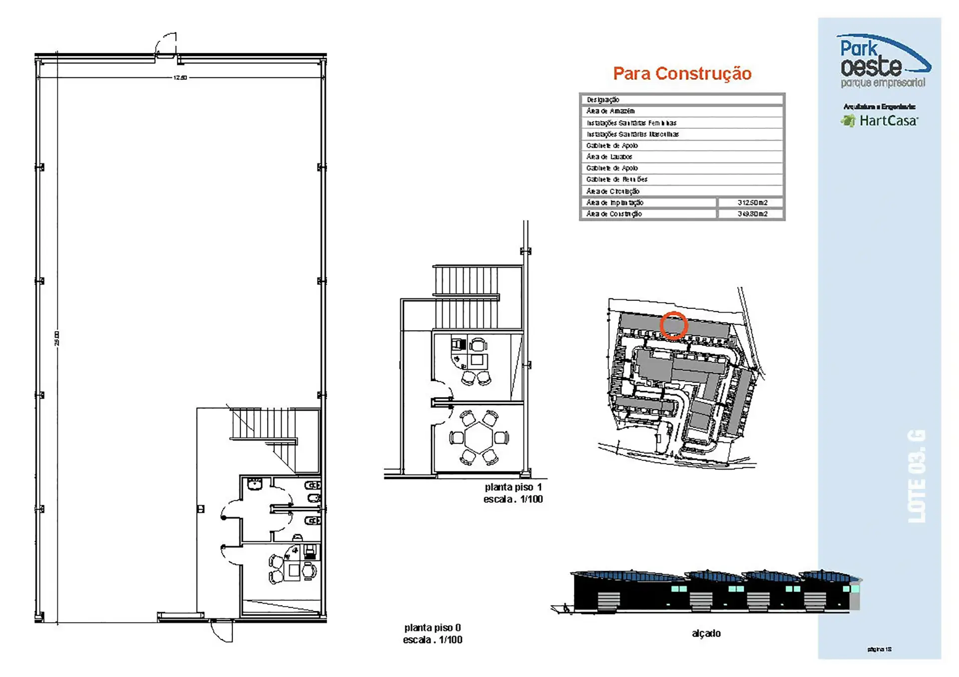
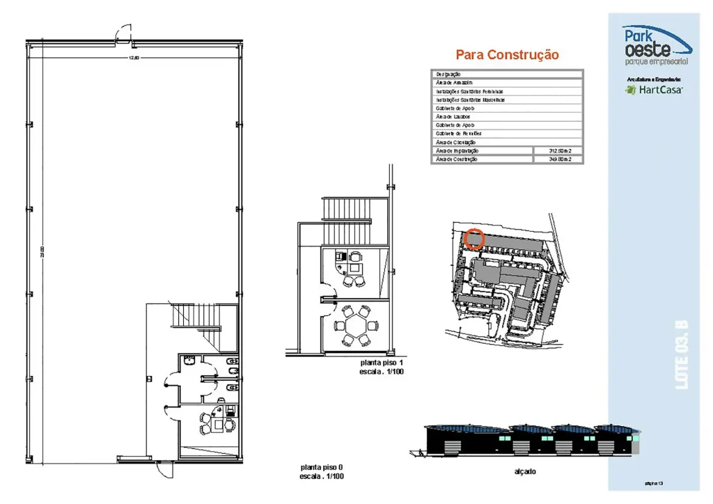
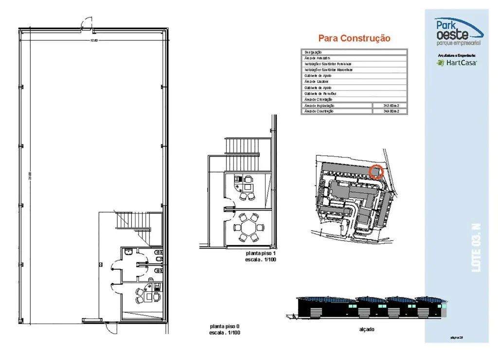
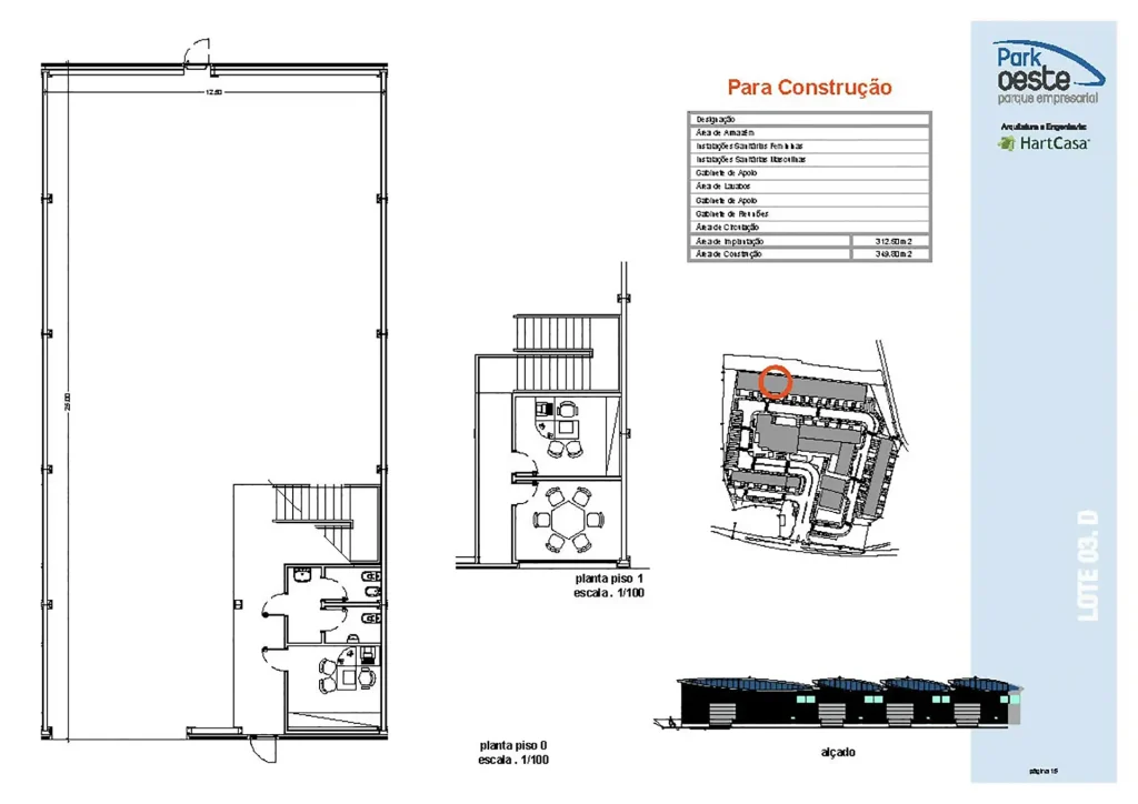
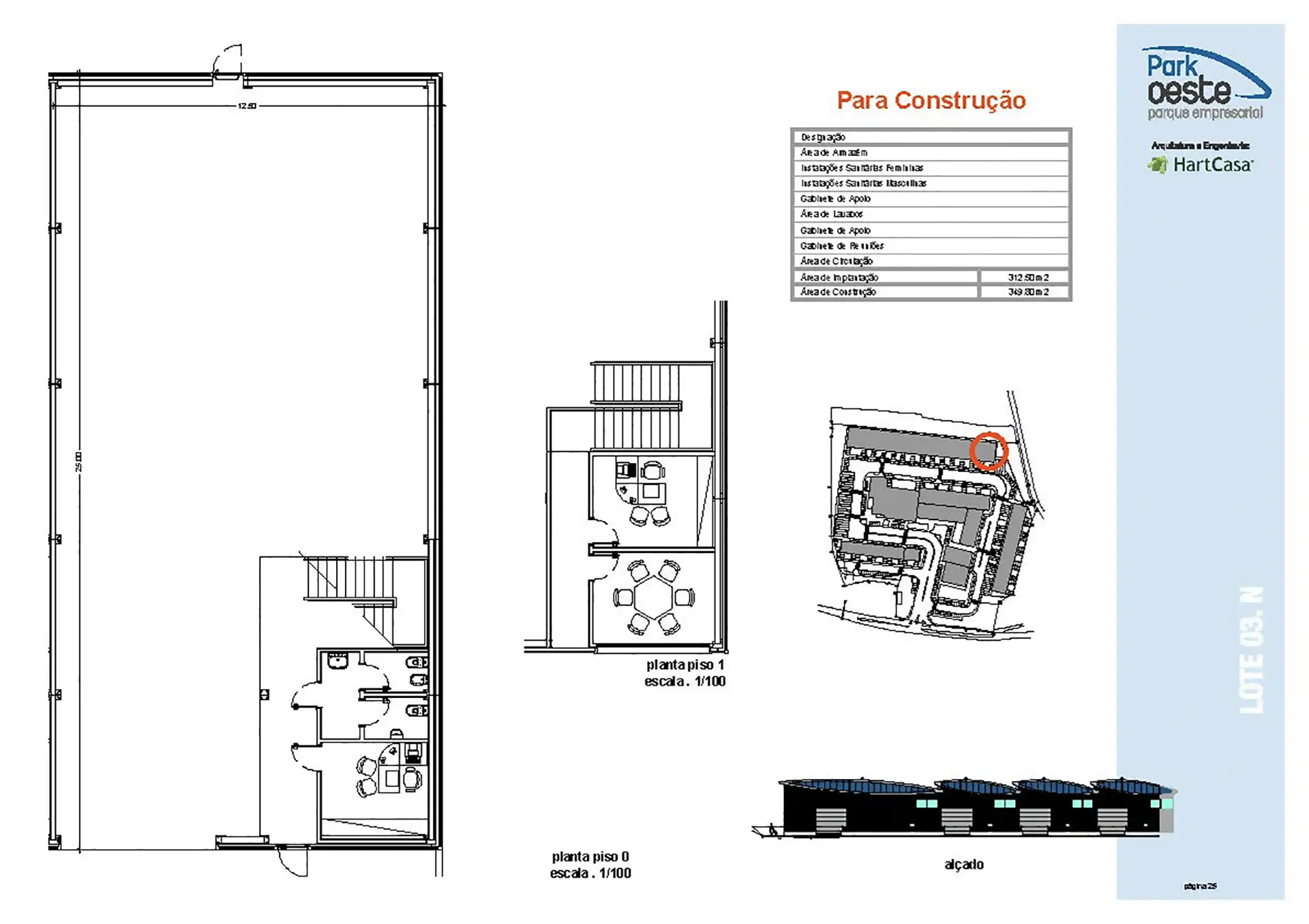
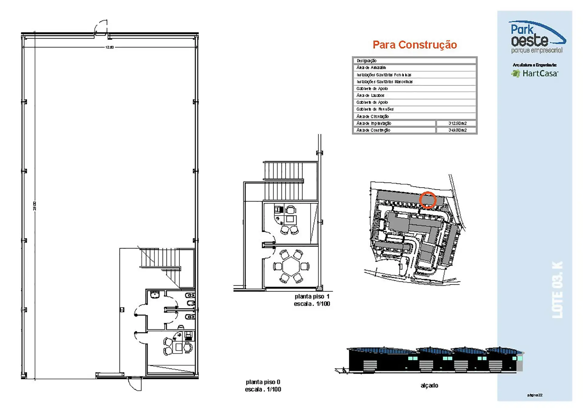
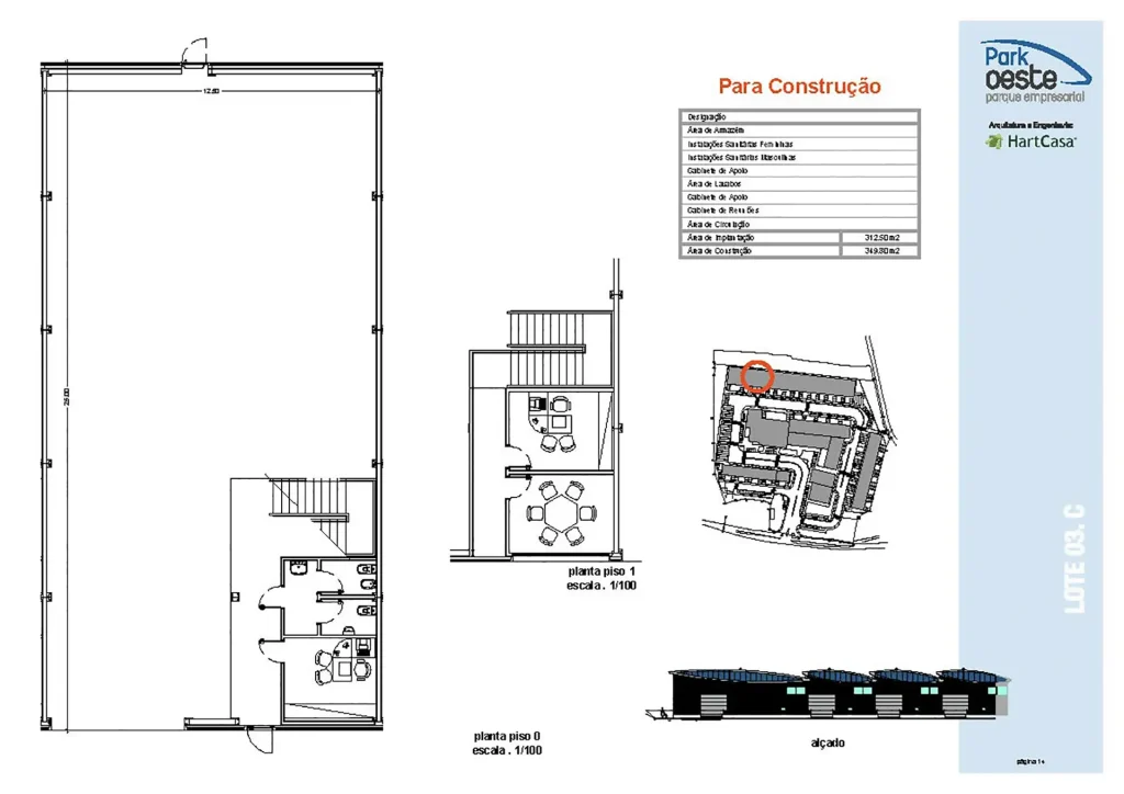
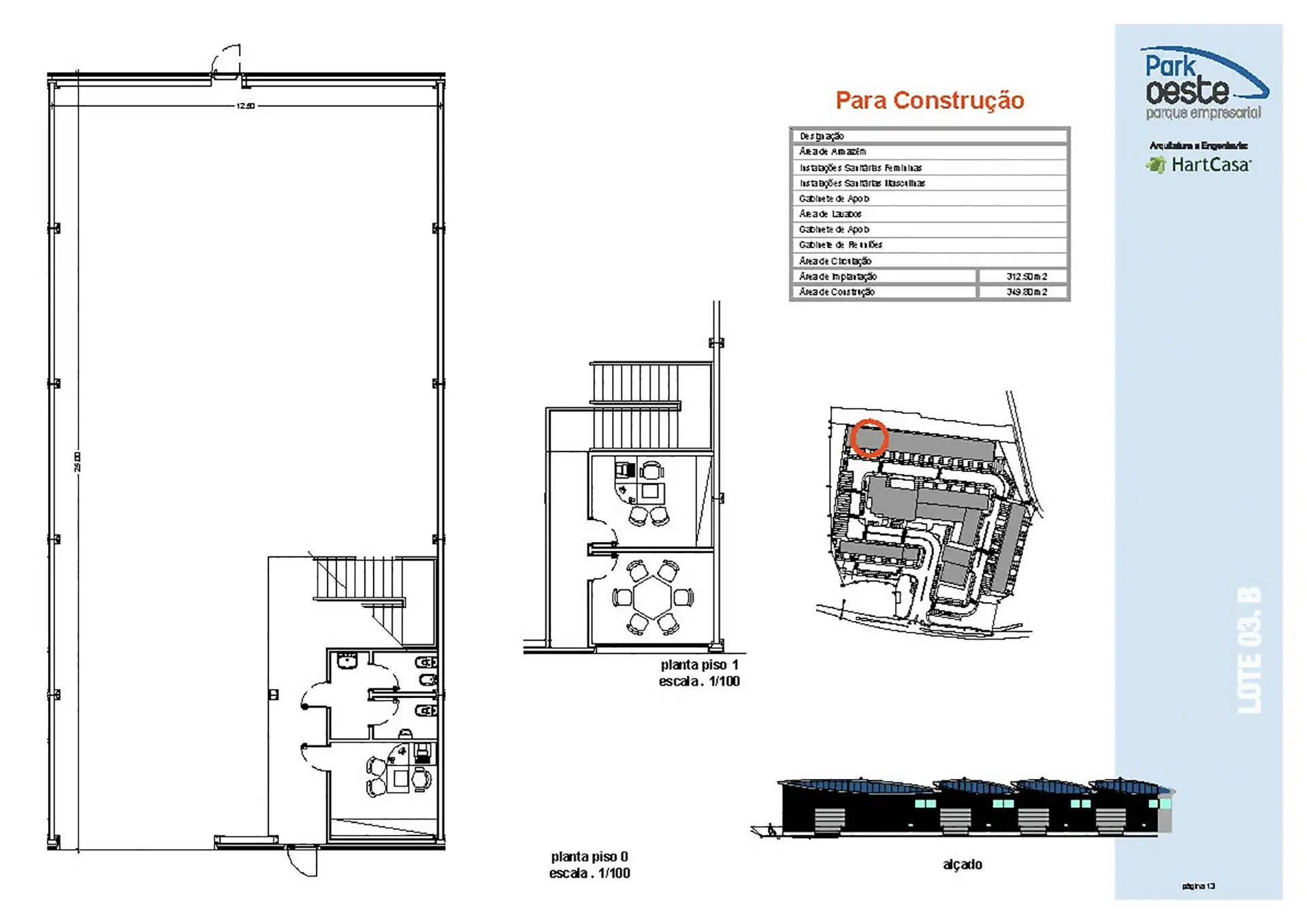
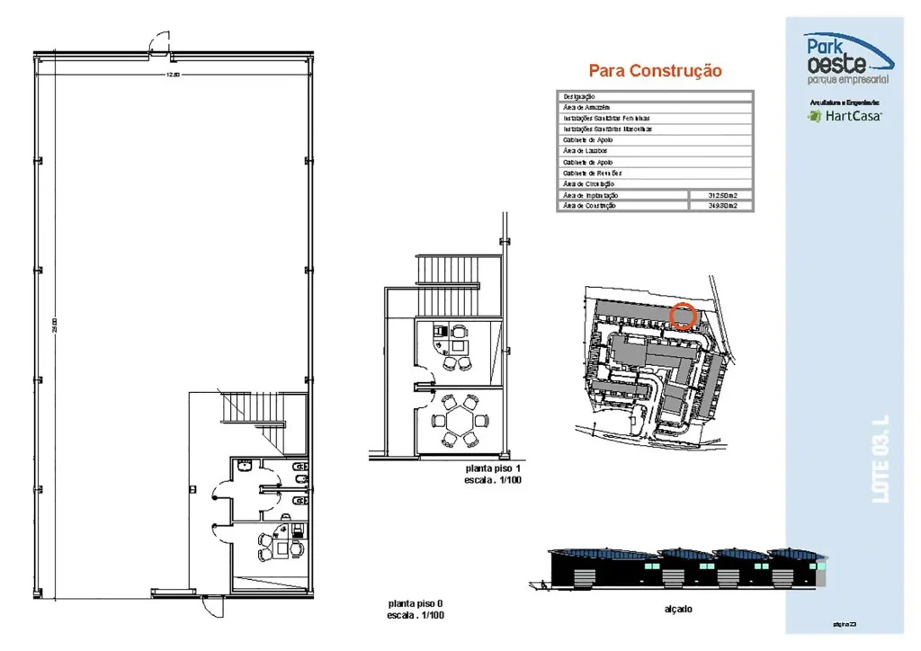
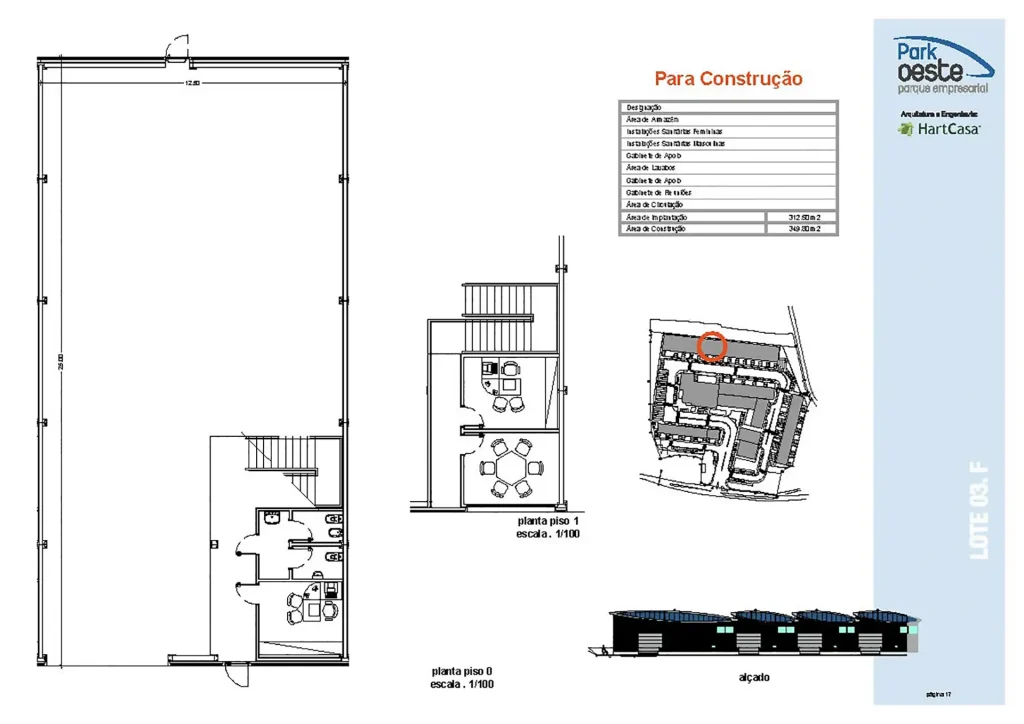
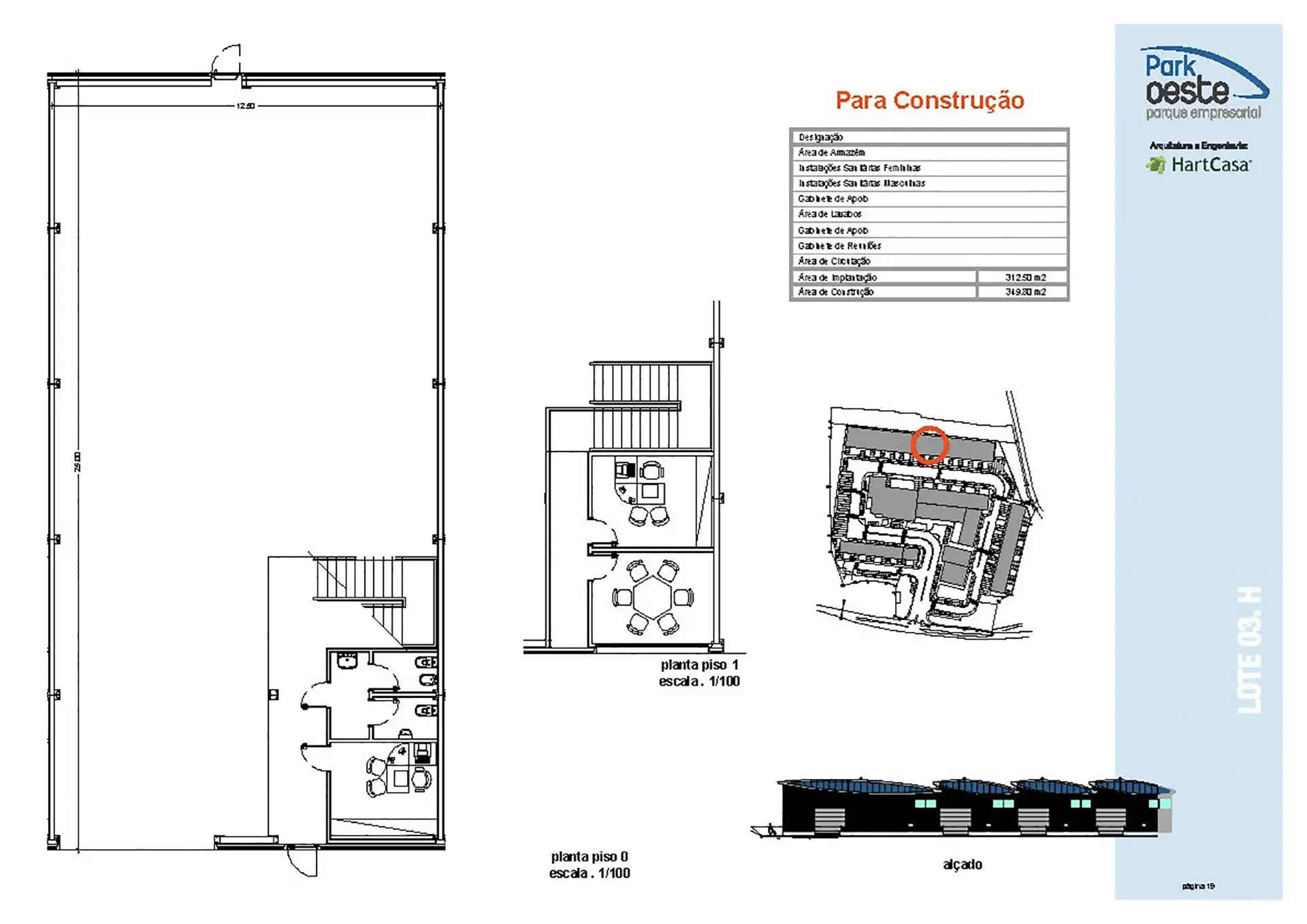
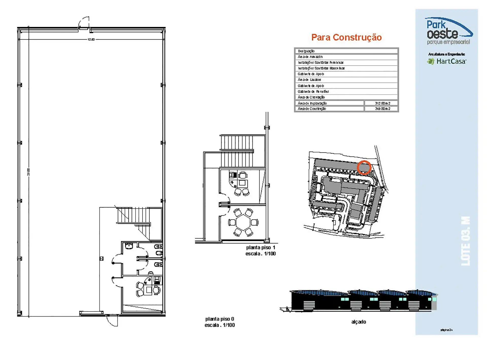
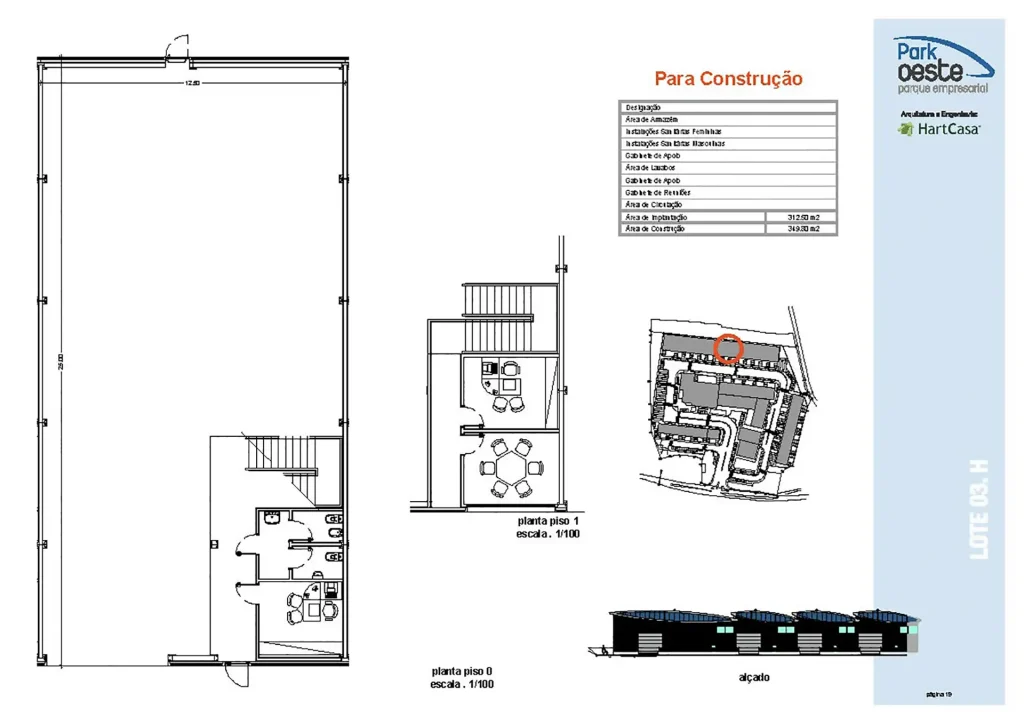
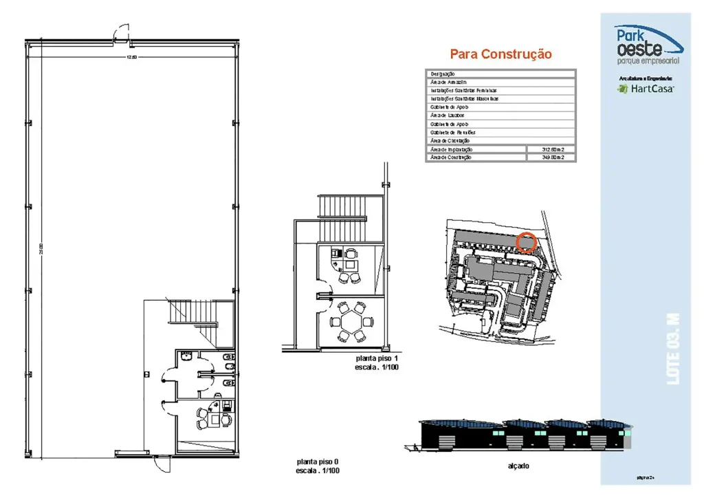
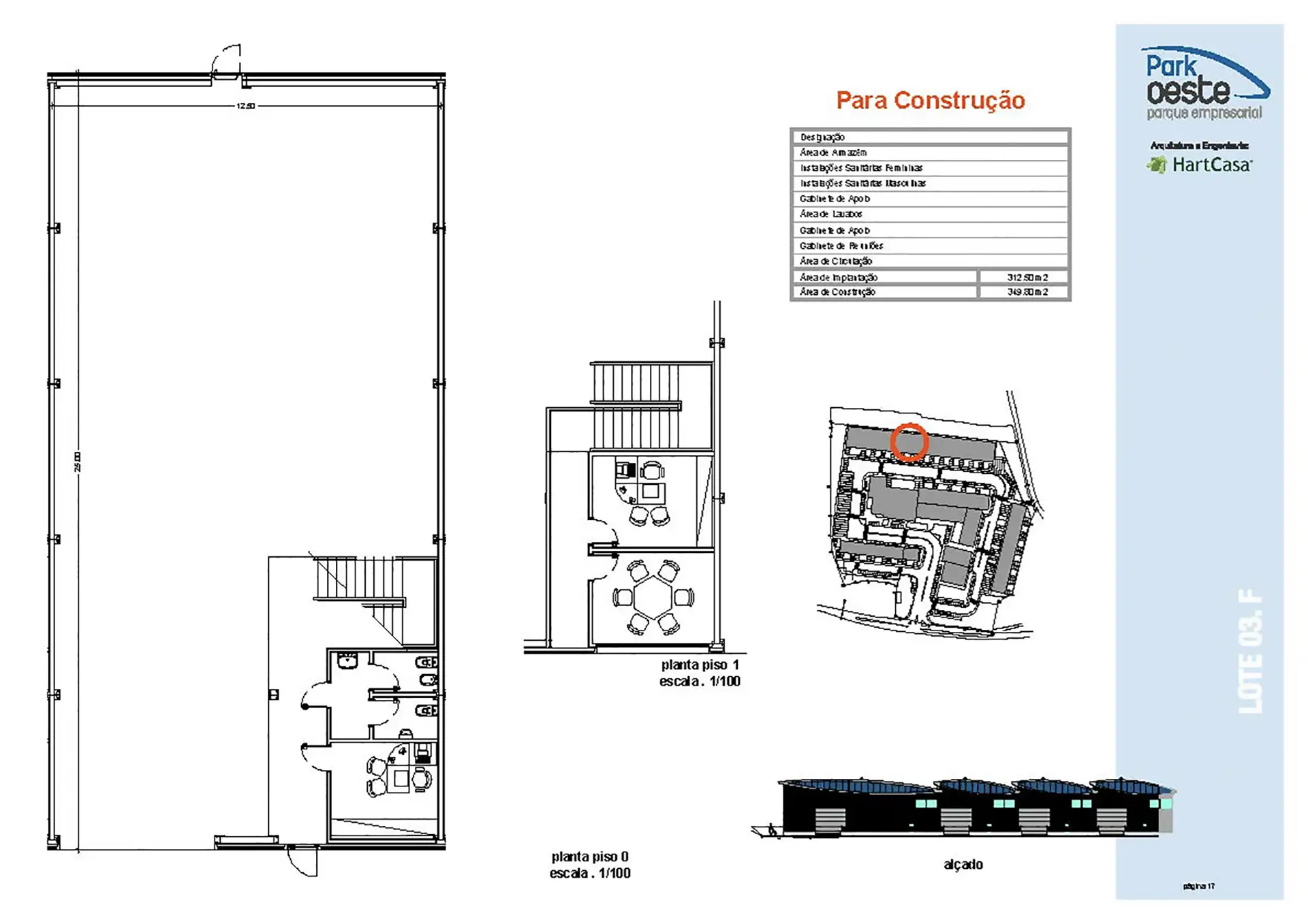
LOTE 3

Não Edificado

Edifício industrial 14 frações autónomas, ideal para comércio grossista, num total de e 5.280 m².

FRAÇÃO ÁREA PISO CONDIÇÃO
A
660 m²
Térreo
B
350 m²
Térreo
C
350 m²
Térreo
D
350 m²
Térreo
E
350 m²
Térreo
F
350 m²
Térreo
G
350 m²
Térreo
H
350 m²
Térreo
I
350 m²
Térreo
J
350 m²
Térreo
K
350 m²
Térreo
L
350 m²
Térreo
M
350 m²
Térreo
N
350 m²
Térreo

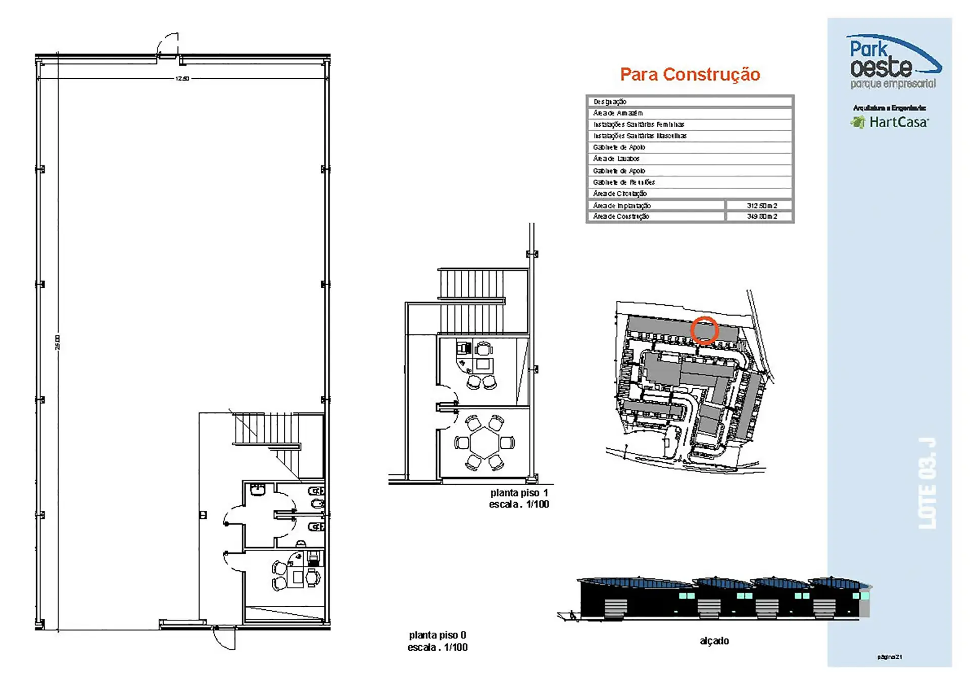
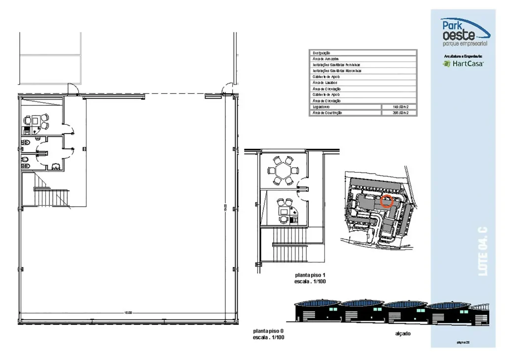
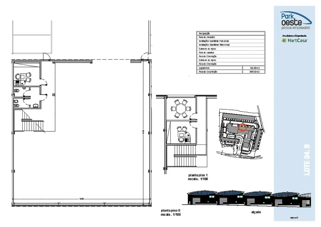
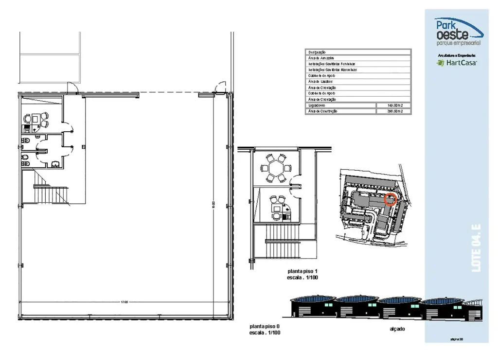
LOTE 4

Armazéns

Edifício industrial, constituído por 5 frações autónomas, todas de piso térreo com logradouro na frente do edifício, destinam-se a comércio ou serviços. Cada fração tem uma área de 346,5 m², e uma área de logradouro de 149,5 m². Área total edificada de 1.732,5 m².

FRAÇÃO ÁREA PISO CONDIÇÃO
A
400 m²
Térreo
B
400 m²
Térreo
C
400 m²
Térreo
D
400 m²
Térreo
E
400 m²
Térreo

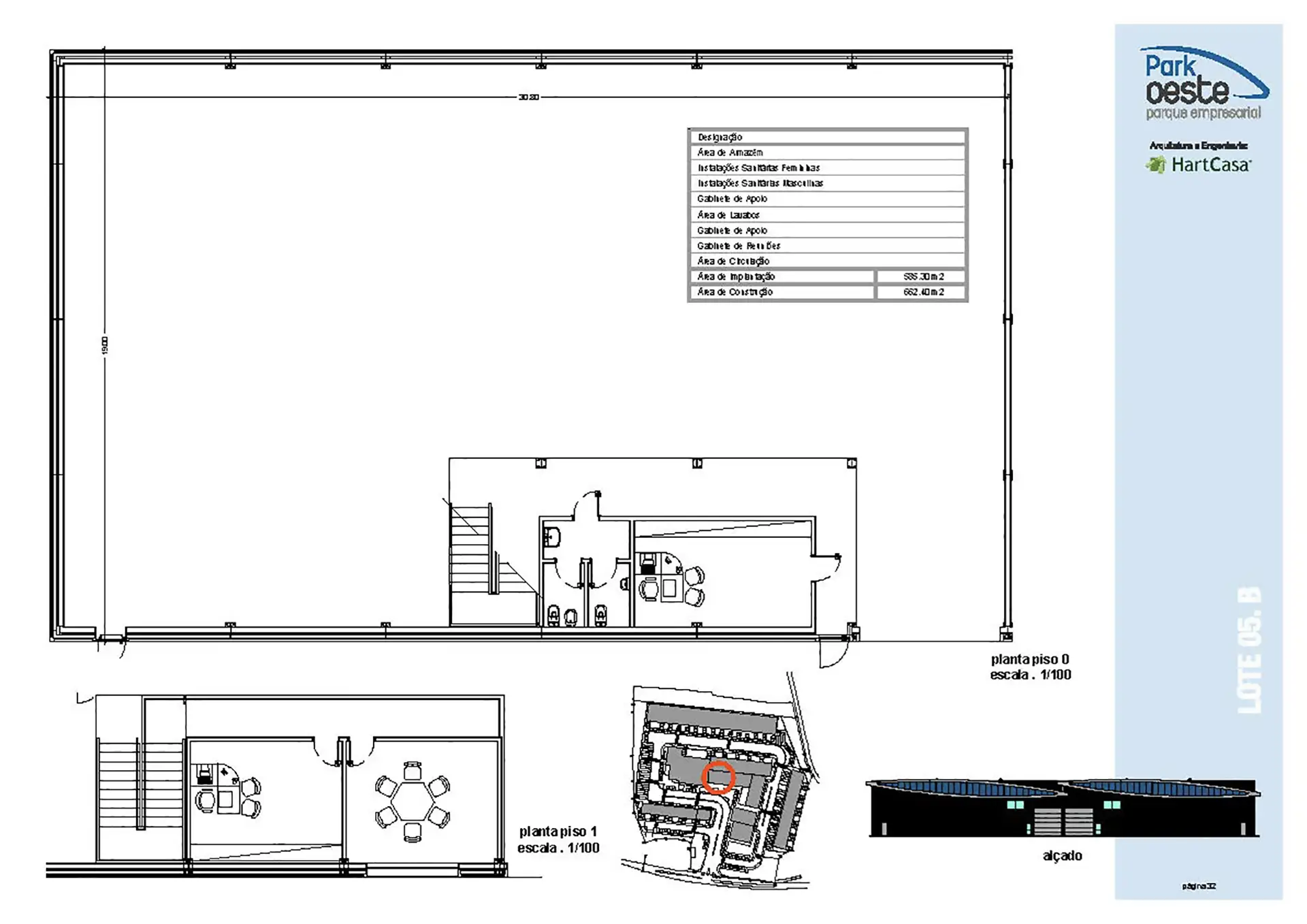
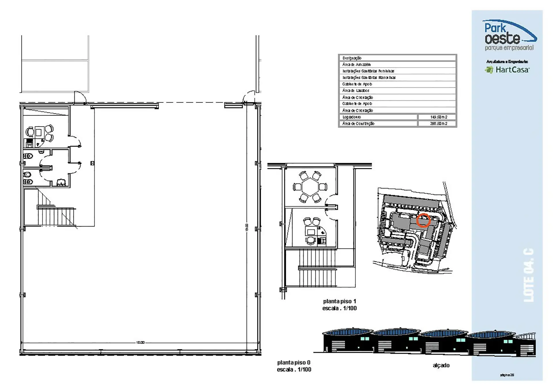
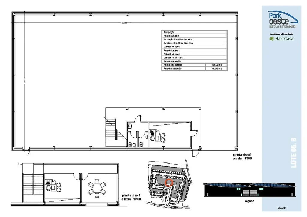
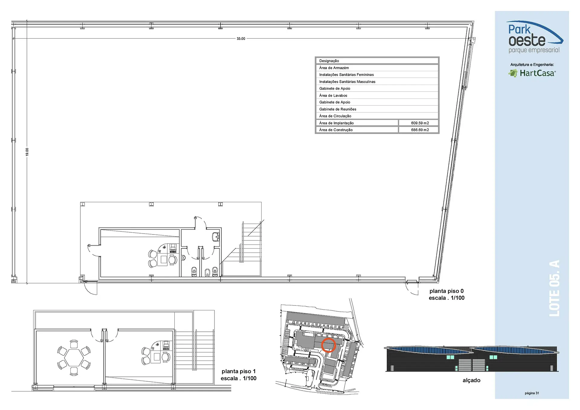
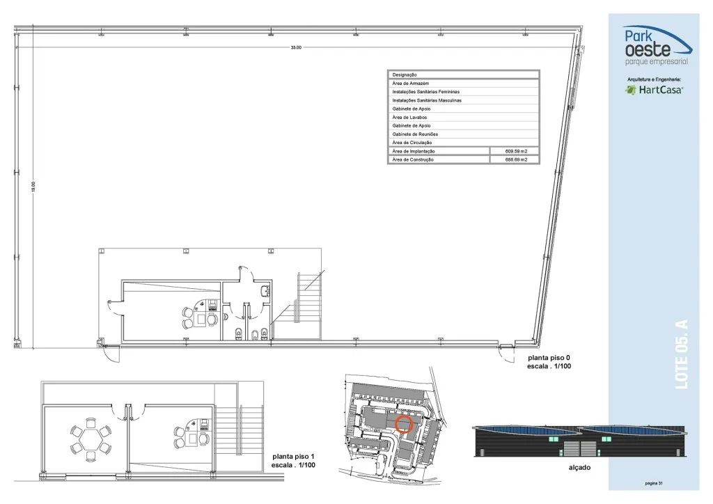
LOTE 5

Armazéns

Edifício industrial composto por uma nave destinada a armazém, e um núcleo de dois pisos constituído por rés-do-chão destinado a showroom e 1º andar destinado a escritórios, com uma área de 2814 m2.

FRAÇÃO ÁREA PISO CONDIÇÃO
A
600 m²
Térreo
B
660 m²
Térreo

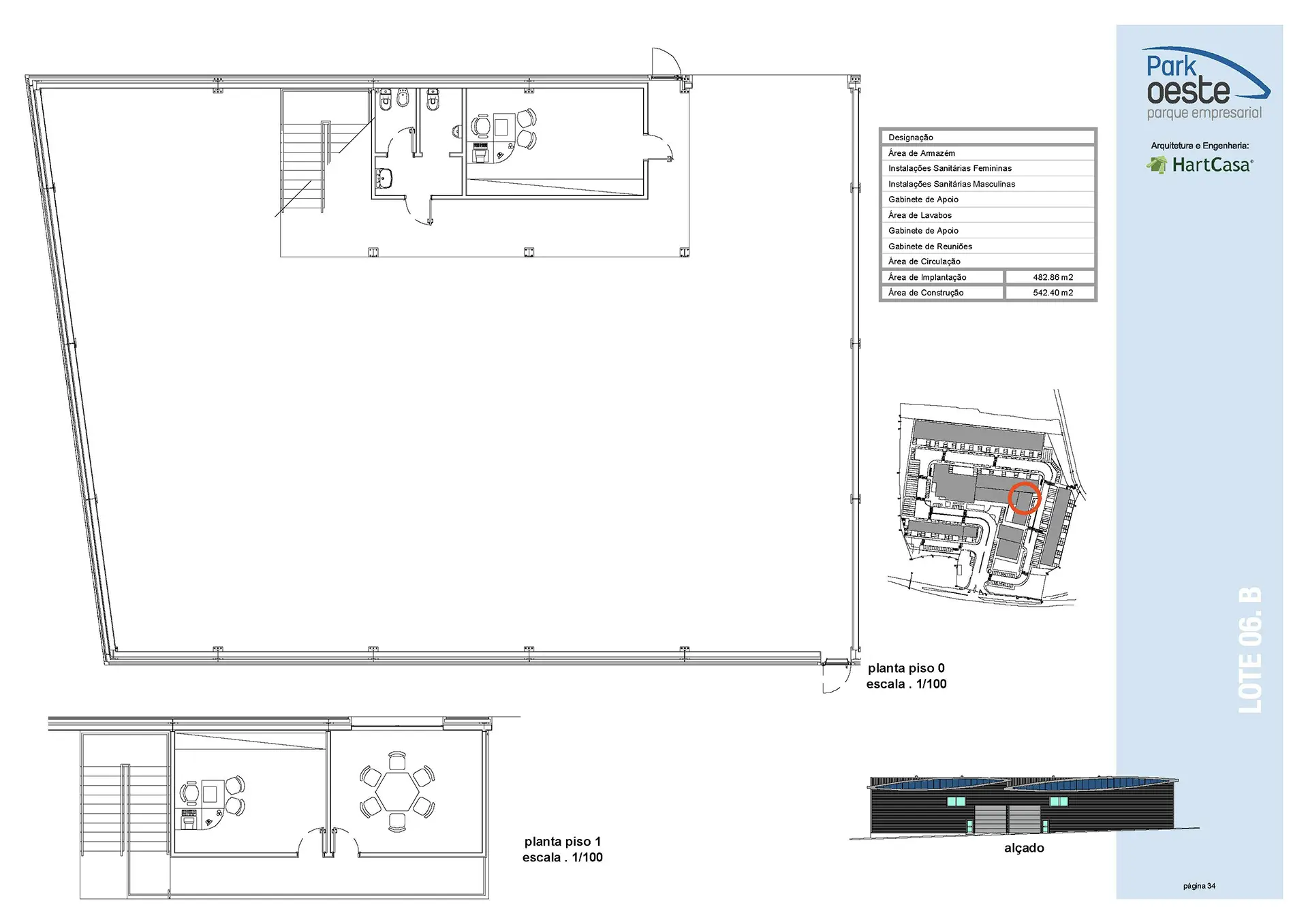
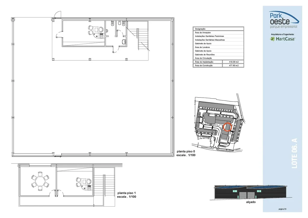
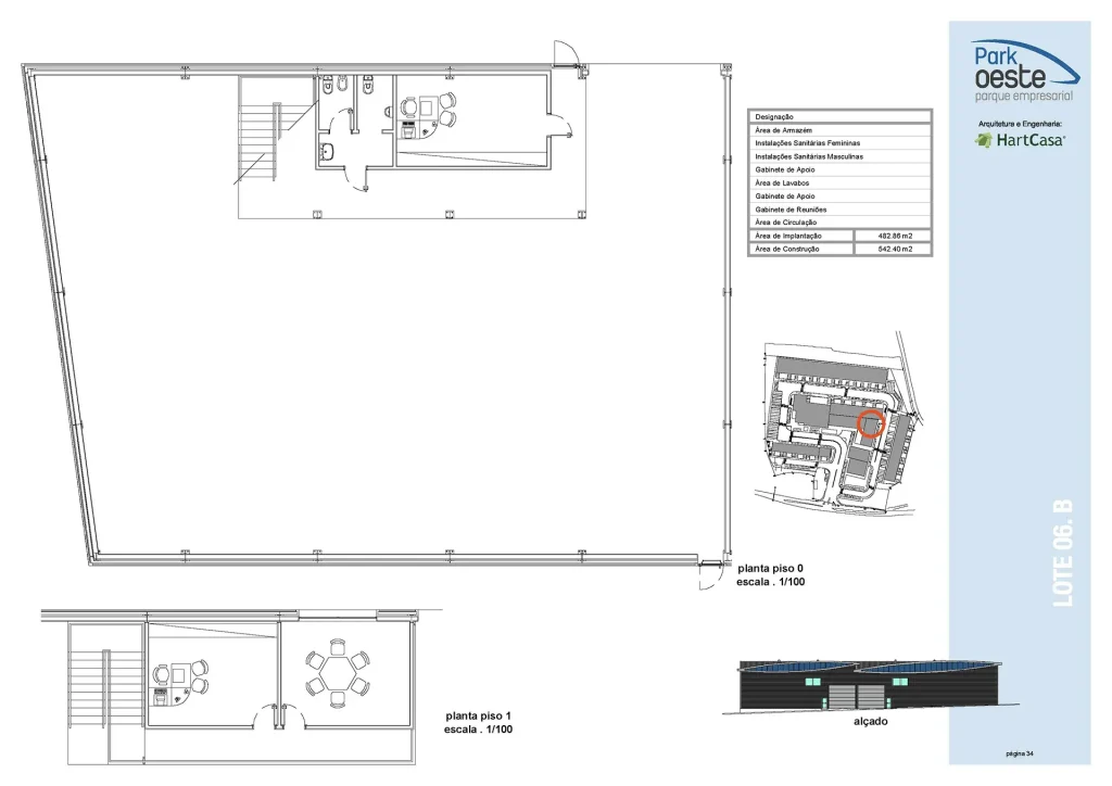
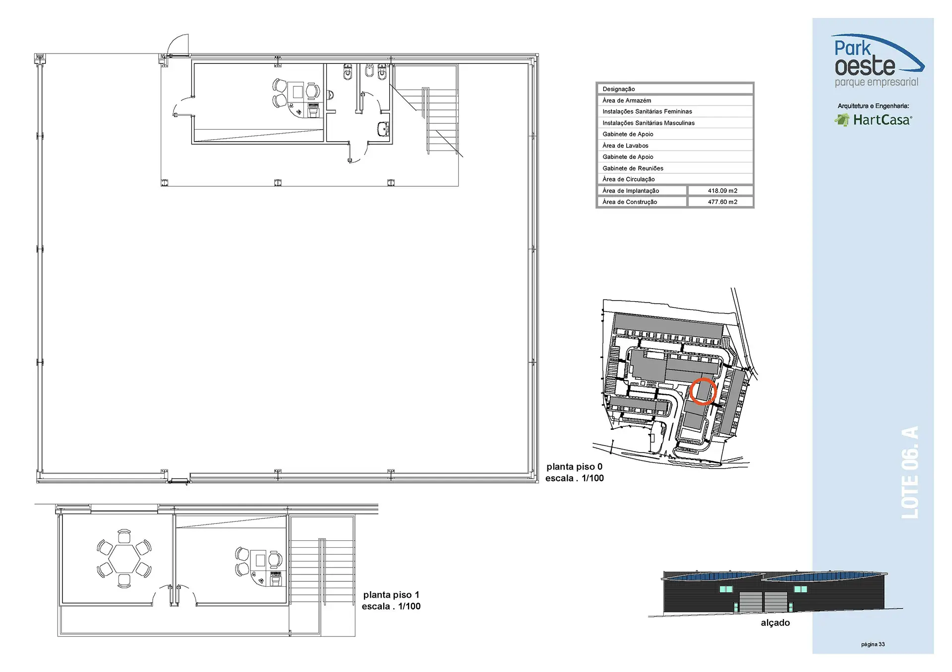
LOTE 6

Armazém

Edifício industrial, constituído por 2 frações autónomas destinadas a comércio ou indústria, com 418,1 m² e 482,9 m², respetivamente, num total de 901 m².

 

 

FRAÇÃO ÁREA PISO CONDIÇÃO
A
480 m²
Térreo
B
5400 m²
Térreo

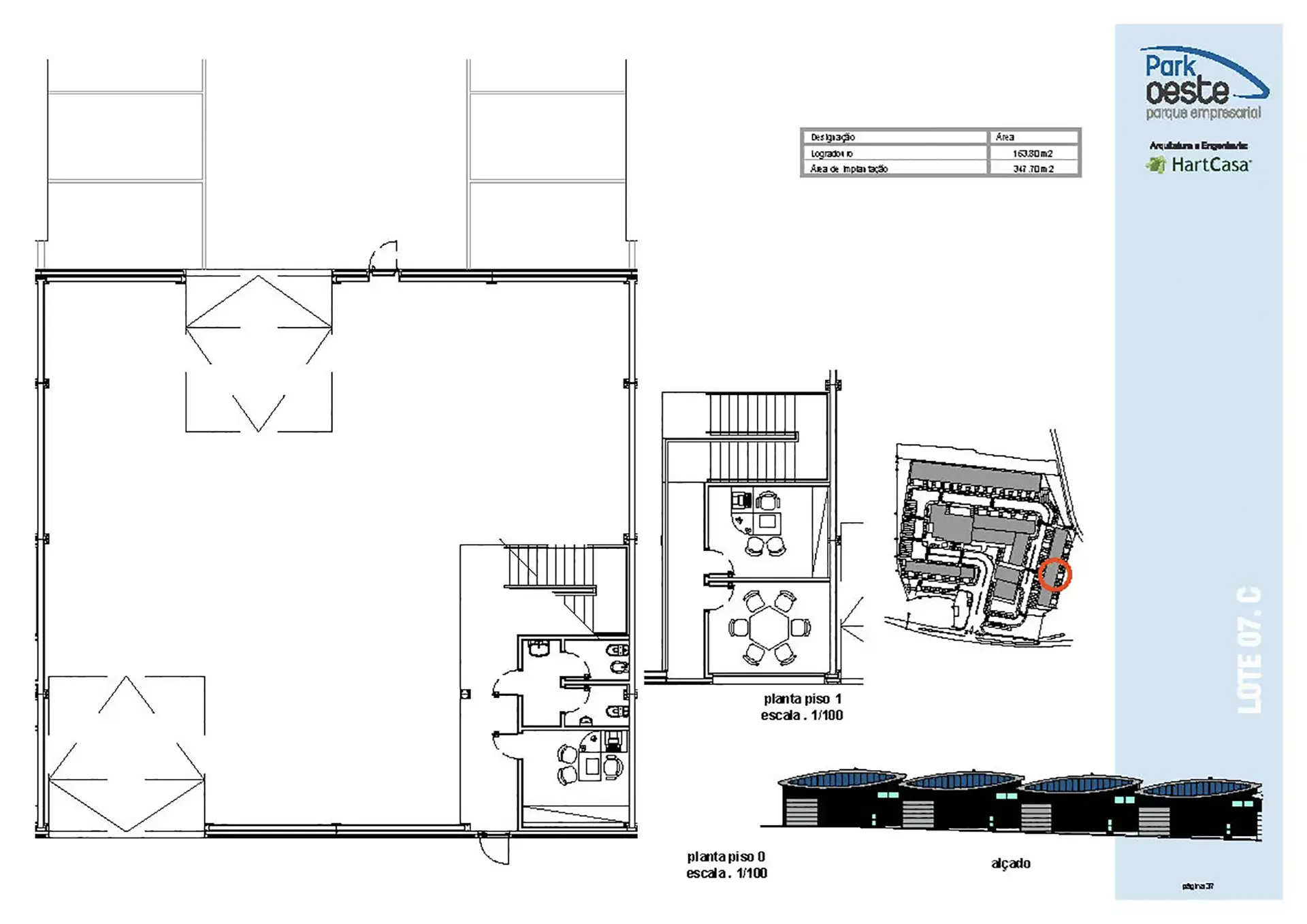
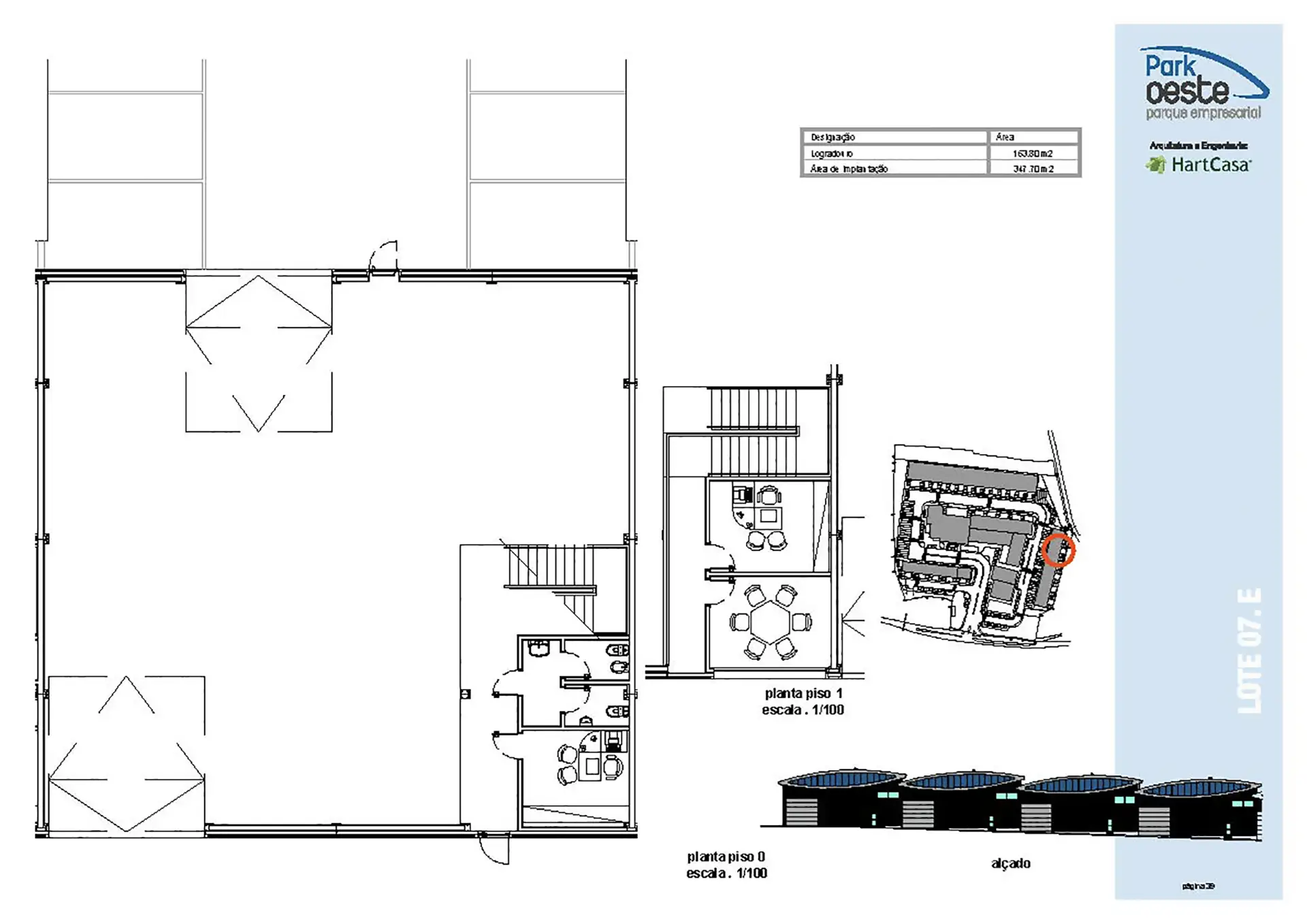
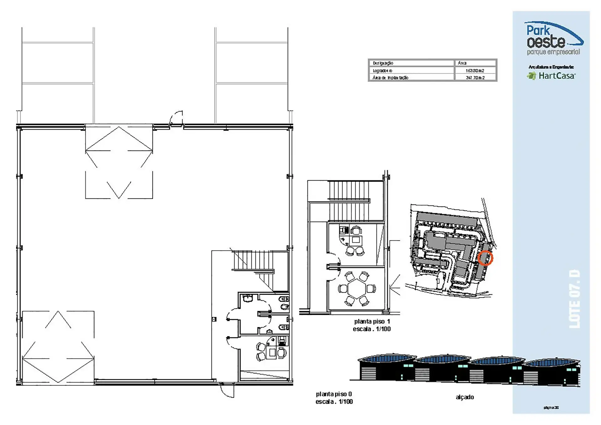
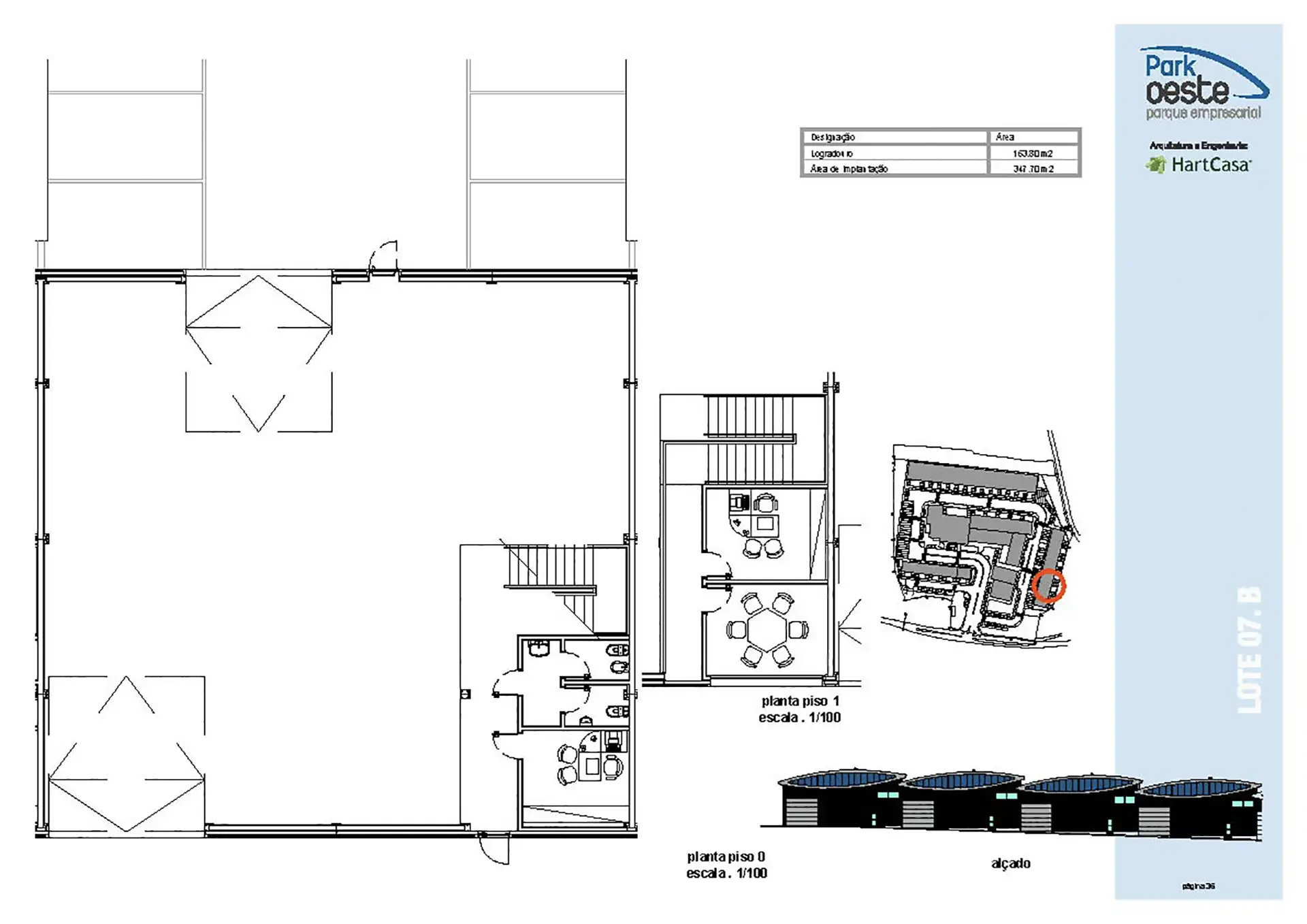
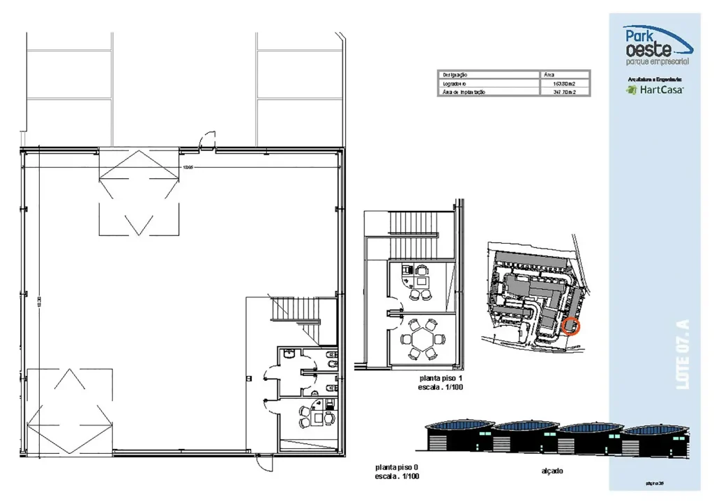
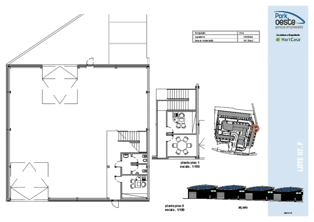
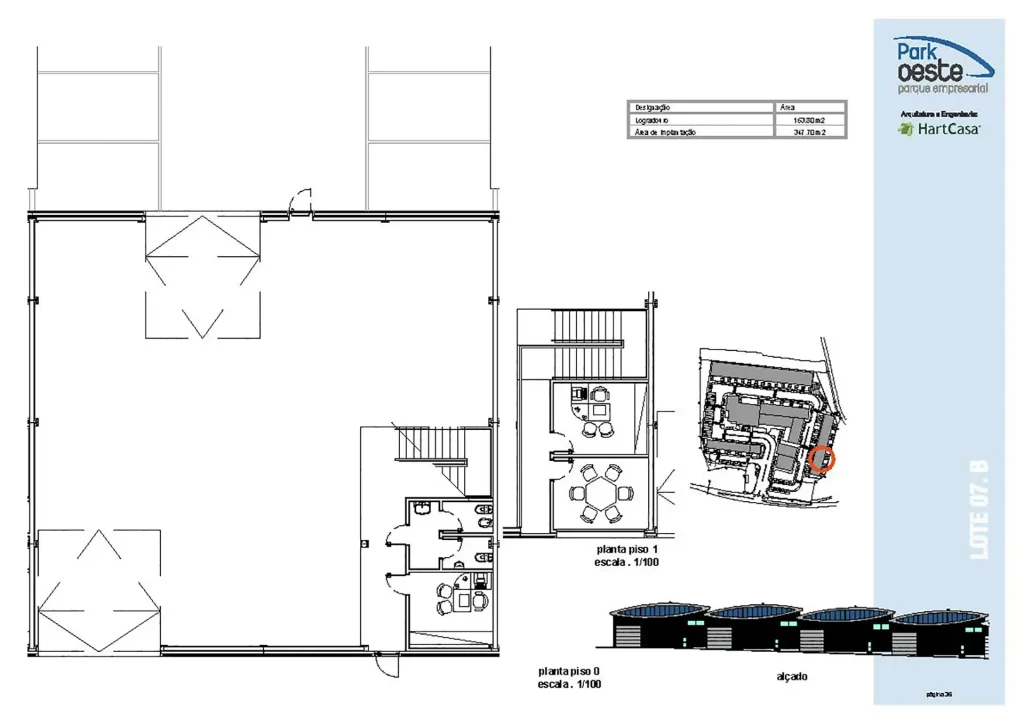
LOTE 7

Armazém

Edifício industrial, constituído por 6 frações autónomas de piso térreo, todas com logradouro, destinadas a comércio ou serviços. Cada fração tem uma área de 347,7 m² e uma área de logradouro de 163,8 m². Área total edificada de 2.086,2 m².

FRAÇÃO ÁREA PISO CONDIÇÃO
A
350 m²
Térreo
B
350 m²
Térreo
C
350 m²
Térreo
D
350 m²
Térreo
E
350 m²
Térreo
F
350 m²
Térreo

LOTE 8

Não Edificado

Com 700 m² de área de terreno, possuirá igual área de implantação e 1.400 m² de área bruta de construção total, com 2 pisos acima do solo e cave. Uso: Indústria.

FRAÇÃO ÁREA PISO CONDIÇÃO
A
250 m²
Térreo
B
250 m²
Térreo
C
250 m²
Térreo
Lojas e espaços comerciais para arrendar

LOTE 9

Não Edificado

Com 750 m² de área de terreno, possuirá igual área de implantação e 1.500 m² de área bruta de construção total, com 2 pisos acima do solo e cave. Uso: Indústria.

FRAÇÃO ÁREA PISO CONDIÇÃO
A
250 m²
Térreo
B
250 m²
Térreo
C
250 m²
Térreo
Lojas e espaços comerciais para arrendar

LOTE 10

Posto de Combustível

Posto de abastecimento de combustível com 90m2. Lote com 1070 m2.

FRAÇÃO ÁREA PISO CONDIÇÃO
A
250 m²
Térreo
B
250 m²
Térreo
C
250 m²
Térreo
Lojas e espaços comerciais para arrendar

LOTE 11

Não Edificado

Edifício industrial, com cave e logradouro e rés-do-chão em 1º andar para a fachada principal, num total de 2 frações autónomas com 300 m² cada, num total de 600 m². Uso: Indústria.

FRAÇÃO ÁREA PISO CONDIÇÃO
A
250 m²
Térreo
B
250 m²
Térreo
C
250 m²
Térreo
Lojas e espaços comerciais para arrendar

5.7ha

Área Total

3ha

Área Comercial

6500m²

Zona Verde

407

Estacionamentos

70

Espaços

5.7ha

Área Total

3ha

Área Comercial

6500m²

Zona Verde

407

Estacionamentos

70

Espaços comerciais